Oddane z ogródkiem

Mieszkanie na sprzedaż
1 123 600,00 PLN, Pow. 92 m2
Drukuj ofertę
  • Typ nieruchomości: Mieszkanie
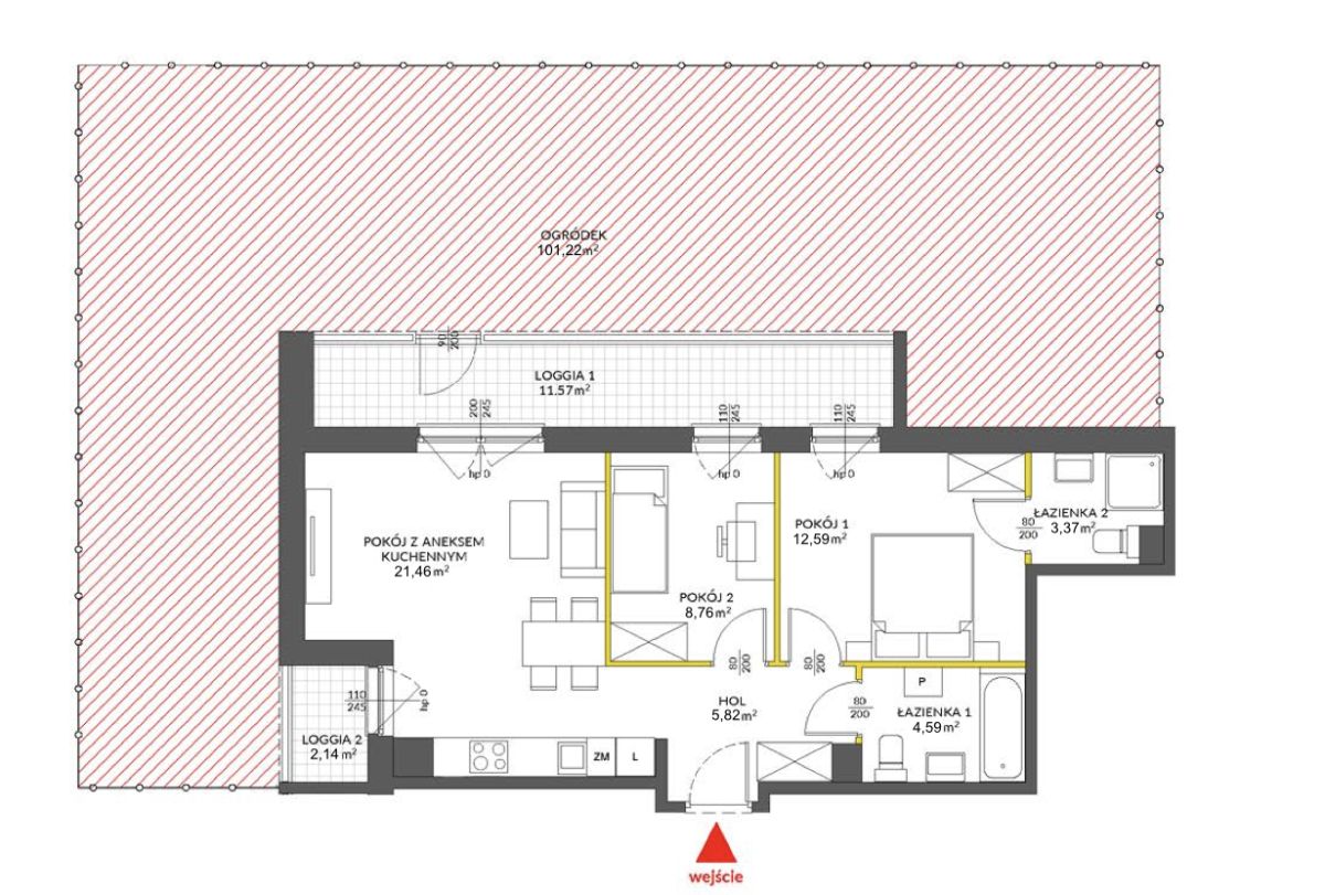
  • Powierzchnia : 92 m2
  • Typ transakcji : sprzedaż
  • Liczba pokoi : 5
  • Lokalizacja : Warszawa Targówek , Marywilska
  • Rok budowy : 2024
  • Piętro: 2 na 7
  • Numer oferty : GH695686
  • Cena za m2 : 12 213,04 PLN

Planowane oddanie: IV kwartał 2026 r.
0% PCC
bez prowizji, zakup od dewelopera 
Liczba pokoi: 5
Piętra: 2 i 3

Układ pomieszczeń:


  • przestronny salon z aneksem kuchennym,

  • 4 sypialnie (idealne dla rodziny lub do aranżacji gabinetu),

  • 2 łazienki - komfortowe rozwiązanie dla większej liczby domowników,

  • 3 loggie - dodatkowa przestrzeń do relaksu, przechowywania i odpoczynku na świeżym powietrzu.



Nowoczesne dwupoziomowe mieszkanie 5-pokojowe, położone na 2. i 3. piętrze budynku z windą, zapewnia wysoki komfort codziennego życia oraz poczucie przestrzeni porównywalne z domem jednorodzinnym. Przemyślany układ pomieszczeń pozwala na wyraźne oddzielenie strefy dziennej od prywatnej.
Duże przeszklenia gwarantują bardzo dobre doświetlenie wnętrz, a trzy loggie zwiększają funkcjonalność mieszkania i komfort użytkowania.

LOKALIZACJA:

  1. szybki dojazd do centrum Warszawy - samochodem i komunikacją miejską,

  2. w pobliżu sklepy, restauracje, punkty usługowe, przedszkola i szkoły,

  3. bliskość centrów handlowych: Factory Annopol, Atrium Targówek,

  4. liczne tereny rekreacyjne: Las Bródnowski, Park Bródnowski, Zalew Zegrzyński,

  5. rozbudowana sieć ścieżek rowerowych,

  6. szybki dojazd do stacji Metro Bródno,

  7. przystanek autobusowy w bezpośrednim sąsiedztwie osiedla.


ZALETY INWESTYCJI:

Osiedle wyróżnia się nowoczesną architekturą oraz niską, kameralną zabudową, co zapewnia komfort i prywatność mieszkańcom. W ofercie znajdują się mieszkania o metrażach od 33,85 m² do 94,52 m², zaprojektowane z myślą o funkcjonalności i wygodzie.
Istnieje możliwość dokupienia:
miejsca postojowego w garażu,
komórki lokatorskiej.


Informacje zamieszczone w niniejszym ogłoszeniu mają charakter informacyjny i nie stanowią oferty w rozumieniu art. 71 Kodeksu cywilnego.
Zapraszam na prezentację!

Viktoriia Artymko
? 883 660 940