Lokal użytkowy 115 m² | Parter | 2 wejścia
Lokal handlowy/usługowy na sprzedaż
790 000,00 PLN,
Pow. 115 m2
Mariusz Gaik
Edyta Bryk
Anhelina Chornoivaniuk
Piotr Leśkiewicz
Dagmara Kozubowska
Karolina Kurek
Łukasz Kutyła
Luiza Miszczyk
Dominik Pawłowski
Angelika Hanowska
Aneta Krakowiak
Kinga Legocka
Julia Walczak
Grzegorz Walczak
Małgorzata Osińska
Radosław Busko
Ewa Porwoł
Aleksandra Sikora
Dawid Urbaczka
Paulina Zerzoń
Ewa Arczewska - Nalepa
Hanna Kurhanskaya
Viktoriia Artymko
Grzegorz Kościelnicki
Na sprzedaż atrakcyjny lokal użytkowy o powierzchni 115 m², położony na parterze budynku z 2010 roku, w bardzo dobrej lokalizacji w Kielce przy ul. Chęcińskiej.
Obecnie w lokalu funkcjonuje apteka. Nieruchomość spełnia wymogi sanepidu oraz przepisy farmaceutyczne.
Najważniejsze atuty:
• parter z bezpośrednim wejściem z ulicy
• duża, dobrze widoczna witryna z miejscem na szyld
• dwa niezależne wejścia
• możliwość podziału na dwa mniejsze lokale
• bardzo funkcjonalny układ pomieszczeń
• możliwość przejęcia apteki wraz z obowiązującym zezwoleniem
• wysoki standard techniczny
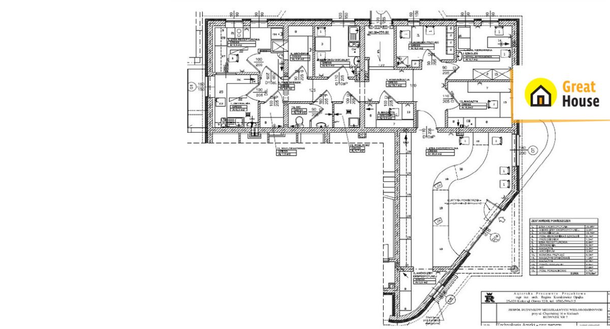
Układ pomieszczeń
główna sala sprzedaży - 39,3 m² (wejście bezpośrednio z ulicy)
oraz 14 pomieszczeń o zróżnicowanej powierzchni, w tym: gabinet, magazyn, zaplecze, kuchnia, łazienka, korytarz oraz pomieszczenia pomocnicze
Większość ścian ma charakter działowy, co daje możliwość:
- przearanżowania lokalu na cztery większe pomieszczenia
- dostosowania pod inną działalność (gabinet, przychodnia, biuro, sklep, kancelaria)
- podziału na dwa niezależne lokale z osobnymi wejściami
Standard i wyposażenie
bardzo dobry stan techniczny
wysoki standard wykończenia
instalacja wentylacyjna
klimatyzacja
monitoring
system alarmowy
ogrzewanie i ciepła woda z własnej kotłowni gazowej budynku
Dostępna opcja zakupu z pełnym wyposażeniem.
Możliwe przejęcie apteki wraz z zezwoleniem.
Cena sprzedaży
790 000 zł
Możliwość wynajmu
czynsz: 5 600 zł miesięcznie
czynsz administracyjny: ok. 800 zł (w tym zaliczki na ogrzewanie, ciepłą i zimną wodę, wywóz śmieci)
kaucja: 5 600 zł
Serdecznie zapraszam do kontaktu
Chętnie udzielę dodatkowych informacji i umówię się na spotkanie
+48 883 644 311
anhelina@greathouse.pl
Chornoivaniuk Anhelina